right arrow
Leased
left arrow
Slide Image
right arrow
Leased
left arrow
Slide Image
right arrow
Leased
left arrow
Slide Image
right arrow
Leased
left arrow
Slide Image
right arrow
Leased
left arrow
Slide Image
right arrow
Leased
left arrow
Slide Image
right arrow
Leased
left arrow
Slide Image

Bondi Beach.

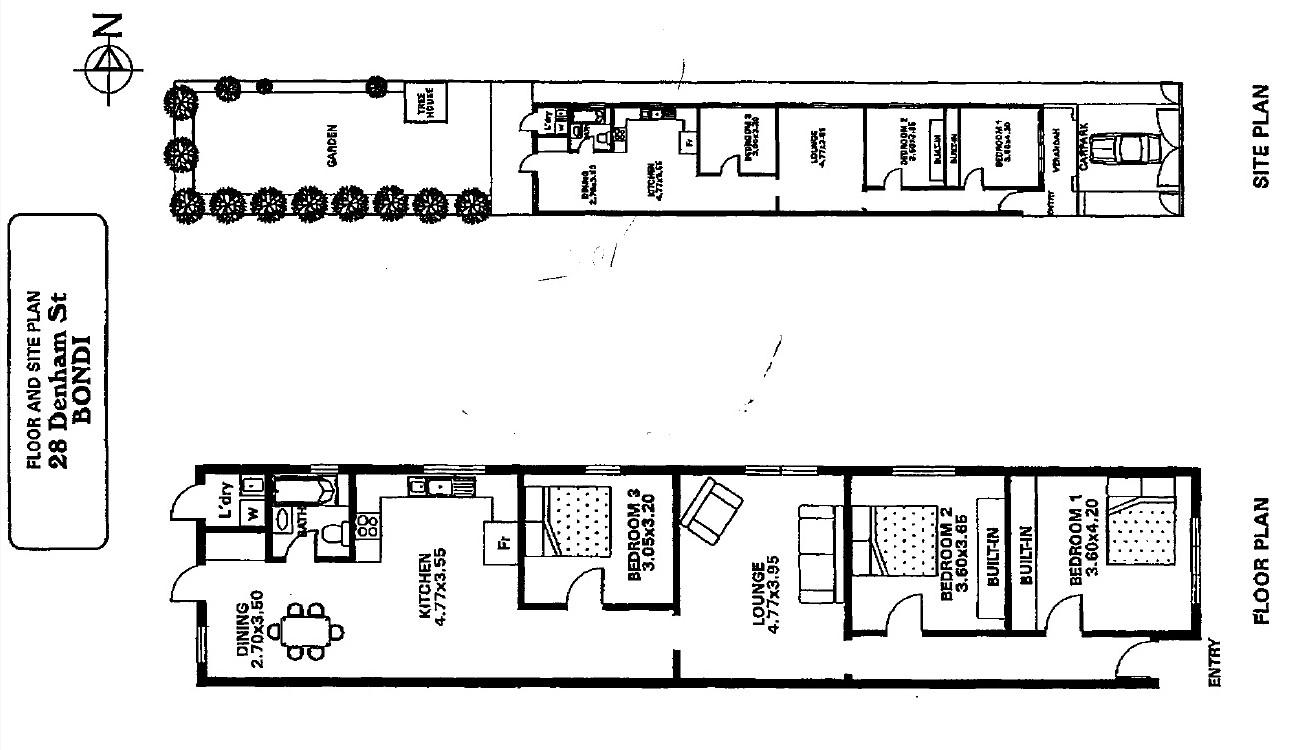
28 Denham Street
3House1House1House
Contact Agent

Spacious Three Bedroom House

Great location, centrally positioned at city transport, and walking distance to beach & shops. This spacious semi offers:

-          3 Bedrooms.

-          Polished timber floors.

-          Open plan kitchen/dining.

-          Neat bathroom.

-          Off street parking and a sunny & private rear garden. 

-          No pets allowed.

-          Available from 28th February.

-          4 Month short term lease only.

-          Unfurnished.

Agents.

Get ahead of the line!

Tell us what you're looking for, so when there is a similar property comes on the market, you'll be the first to hear from us.